量身定做沙发卡座尺寸,规划沙发卡座图纸作者: 来源:
量身定做沙发卡座尺寸,规划沙发卡座图纸
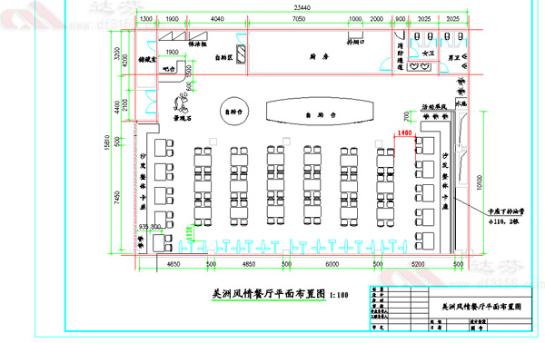
总想老店换新沙发卡座,但对店面的面积来说,不知能摆放几张沙发卡座,沙发卡座尺寸是多少?怎么摆放沙发卡座好?
达芬家具为您解忧“量身定做沙发卡座尺寸,规划沙发卡座图纸”
订购电话:400-6962-114(免长途费)
电话:020-28962488
声明:此产品描述为广州达芬家具有限公司所有,如有抄袭我们将在网上公布并保留民事诉讼权利
如您还有什么不明白立即咨询:餐厅沙发卡座制造商加我们的在线
QQ2449135154,(免费热线)
400-6962-114
达芬餐厅沙发卡座制造商采购顾问将为您提供采购咨询服务。
点击>> 餐厅沙发卡座制造商了解详情
版权所有http://www.df3158.com(达芬家具)转载请注明出处.

