当前位置:首页 > 新闻中心 >> 详情

达芬免费提供卡座沙发CAD设计矢量图作者:小梁 来源:http://www.df3158.com

达芬家具是专业定制卡座沙发企业,可以免费上门测量,免费提供卡座沙发定制CAD矢量图。达芬家具精心规划设计客户心目中的卡座沙发,尽量用到每寸空间,规划卡座沙发舒适不浪费空间。


达芬免费提供卡座沙发CAD设计矢量图

卡座沙发CAD矢量图的尺寸定制沙发卡座不是统计的尺寸,不同需求可以定制不同的尺寸。如卡座沙发有多种形状,有长方形,U字形,半圆形等,这些不同的形状尺寸就不一样。


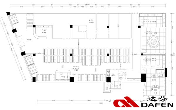
卡座沙发矢量图

平时我们看到定制双人卡座沙发是不是就是说是两个人做的卡座沙发呢?那两人坐的卡座沙发尺寸应该是多少?其实双人的卡座沙发不仅仅是说只可以坐两个人而是三个四个都可以。所以在选择定制卡座沙发尺寸的时候不是说只考虑两个人坐不坐得下。那么双人卡座沙发尺寸是多少?

这个问题就需要我们来具体问题具体分析了,为什么这么说呢。因为每个餐厅面积 的大小都不一样,不能说讲出一个具体的大小来为提供参考。有的餐厅面积非常的大,哪当然是选择尺寸相对比较大的卡座沙发啦,有的人餐厅面积不是太宽裕或者是有别的东西要放,就可以去选择尺寸比较小的卡座沙发。

双人沙发尺寸的大小该如何来定,先要考虑的是餐厅面积的大小,根据实际情况的摆放条件来设定尺寸。再次呢要餐厅的设计风格,和整个餐厅的布局。双人沙发的尺寸大小要和整个餐厅协调起来,不能显得太过突出。


卡座沙发矢量图

如果您现在开餐厅了,不防来咨询一下达芬家具客服,可以免费提供提供卡座沙发CAD设计矢量图。达芬卡座沙发定制服务流程:

1、5秒在线申请,免费预约达芬定制

2、24小时内客服确认,设计师免费上门量尺设计

3、空间个性化定制 免费出CAD效果图

4、展厅体验确定设计方案

5、免费送货及免费上门安装

地址:广东省广州市番禺区南方沙溪五金酒店用品城北区一街5号二楼
全国订购统一订购电话:400-6962-114    QQ:2850155436    邮箱:dafen168@126.com
达芬餐厅家具定做 $config.Icp_Number
鄂ICP备10209165号 dm